Leave a Message

Thank you for your message. We will be in touch with you shortly.

514 Classon Avenue 1
514 Classon Avenue 1
VIEW PHOTOS
$7,500/mo

514 Classon Avenue 1

3 Beds 3 Baths Sq.Ft.

Description

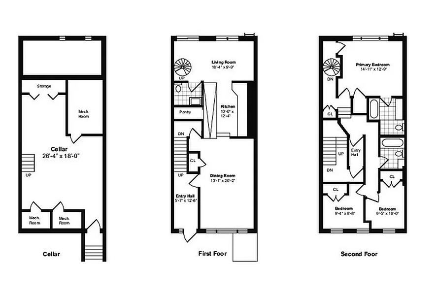
Introducing 514 Classon Avenue #1, a stunning residence nestled in Clinton Hill, Brooklyn. This spacious triplex showcases 3 bedrooms, 2.5 bathrooms spread over approximately 2,000 square feet, along with a private backyard and a finished basement.

Indoors, hardwood floors adorn the entire apartment except for the tiled kitchen area. The main level comprises a spacious living room, kitchen, dining area, and a sizable powder room. Enjoy the comfort of radiator heat included in the rent. Each room boasts its own mini-split unit, while ample closet and storage space abound.

The kitchen is a chef's delight, boasting granite countertops, plentiful cabinetry, and stainless steel appliances including a range with oven and second wall oven, built-in microwave, dishwasher, and a convenient walk-in pantry. Ascend the winding staircase to discover the primary suite, complete with its luxurious jacuzzi tub-equipped bathroom. The remaining bedrooms share a second full bathroom with a combined shower and tub.

Descend to the basement to find additional living space and storage, along with a smart GE washer and dryer, enabling remote laundry management with real-time notifications and updates. Step outside to the paved backyard, adorned with lush greenery and ample space for entertaining or simply relishing the surroundings.

Conveniently situated just one block from the Franklin Ave C and Shuttle stop, commuting to the city is effortless. Additionally, the neighborhood boasts an array of shops and dining options for your enjoyment.

Share Property

Location

514 Classon Avenue 1, Brooklyn, NY 11238

Status

Leased
Steffen Kral

Steffen Kral

TITLE

Licensed Associate Real Estate Broker

Brooklyn

40.6782° N, 73.9442° W

Property Amenities

View additional property information below.
Interior
Laundry room In Unit, See Remarks
Appliances Dishwasher, Gas Cooktop, Gas Oven, Refrigerator, Stainless Steel Appliance(s), Washer
Flooring Hardwood
Total Bedrooms: 3
Half Bathrooms: 1
Full Bathrooms: 2
Other Interior Features Chandelier, Entrance Foyer, Granite Counters, Recessed Lighting
Area & Lot
Living area Sq.Ft.
MLS® ID RLS10960543
Year Built 1901
Architecture Styles Walk-Up
Type Multi-Family
Status Leased
Exterior
Stories 4
Air conditioning Central Air
Heat type Natural Gas
Other Exterior Features Private Yard
Finance
Lease Price $7,500/mo

Work With Steffen